


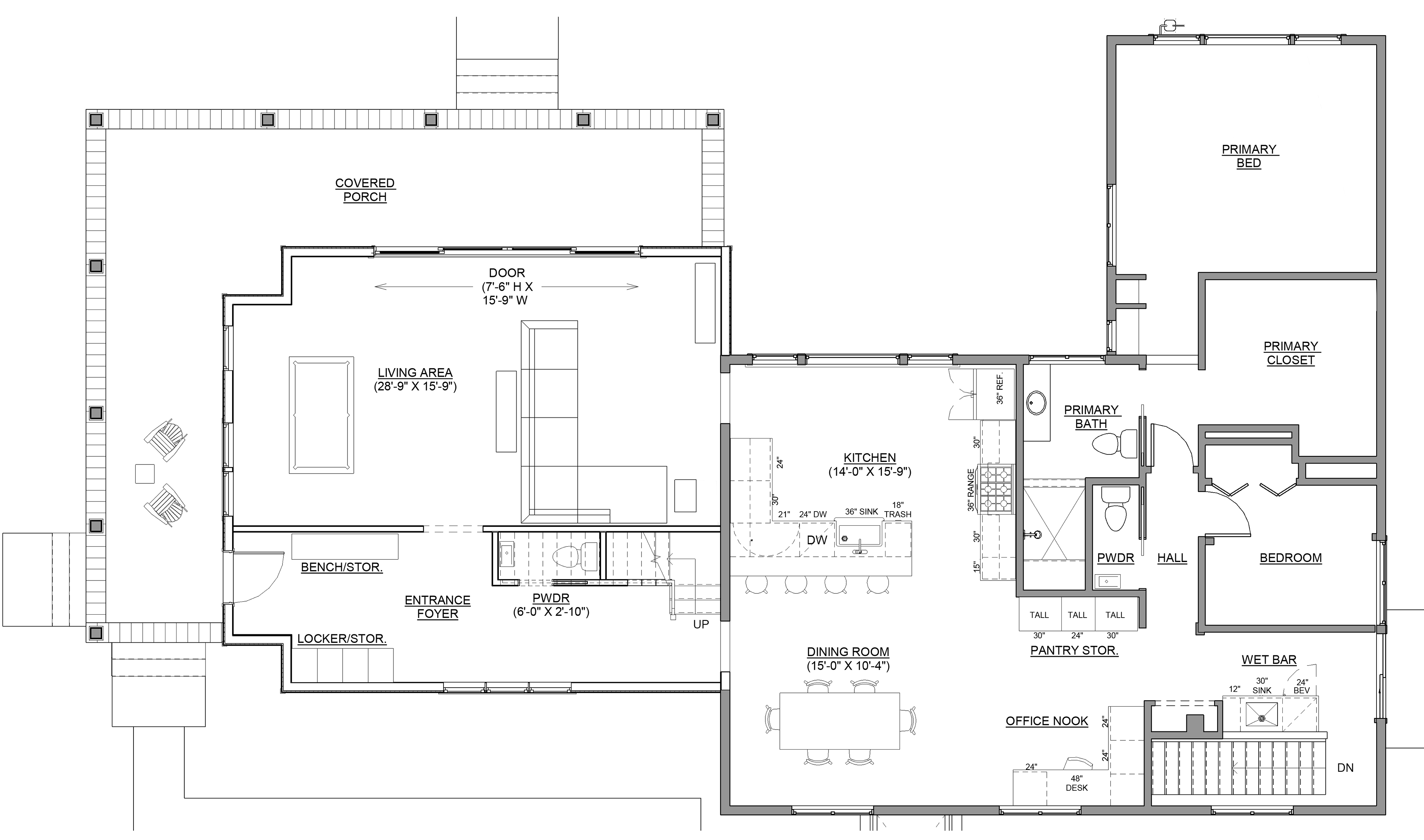
First Floor Plan

Second Floor Plan

View At Entrance

View Into New Addition

View From Side Porch
The location of this home is exemplary of the vastness of Wall Township, with many neighborhoods adjacent to small beach towns, this neighborhood contains multi-acre properties and farmland. The family was outgrowing their single story home, but did not want to add a story above in order to maintain the vaulted ceilings inside the existing house. The existing house in a far-back corner of the lot, so a two story structure in front of the existing house was designed with additional living space below two bedrooms and a full bath. The wrap-around, low masonry porch was a 'must-have' for the homeowners and kids to easily step into their expansive property. Together with the rural location, the porch inspired the Farmhouse Style of the renovated exterior.
First Floor Plan
Second Floor Plan
View At Entrance
View Into New Addition
View From Side Porch