ARCHITECTURE
INTERIORS
BIM CONSULTING
ABOUT / CONTACT
ARCHITECTURE
INTERIORS
BIM CONSULTING
ABOUT / CONTACT
Caroline Grieco

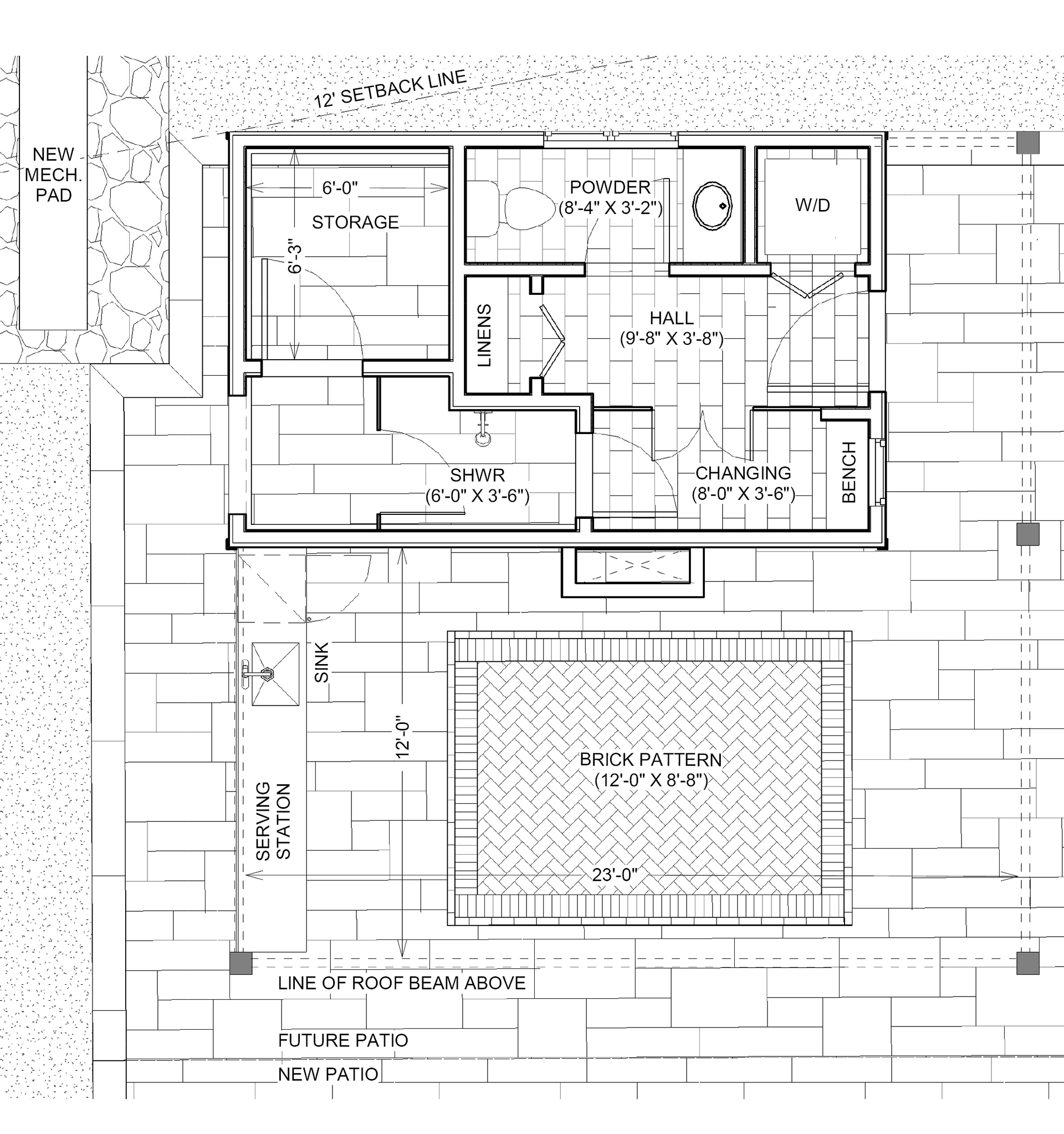
Pool Cabana in Rumson, Jersey Shore

Every new pool (and pool party) is better with a cabana.

Cabana Floorplan

You may also like

House in Oceanport, Jersey Shore
2023
Two-Family Residence in McKinley Square, Jersey City
2022
House in Allenwood, Jersey Shore
2023
West Side Ave Multi-Family Residential, Jersey City
2020
House in Belmar, Jersey Shore
2022
House in Wall Township, Jersey Shore
2022
Jersey City Heights Mixed-Use Building Renovation
2021
House in Union County
2023
House in Sea Girt, Jersey Shore
2024
Multi-Family Historic Renovation, Jersey City
2018
↑Back to Top
Powered by Adobe Portfolio