FRONT VIEW LOOKING SOUTHEAST
FRONT VIEW LOOKING NORTHEAST
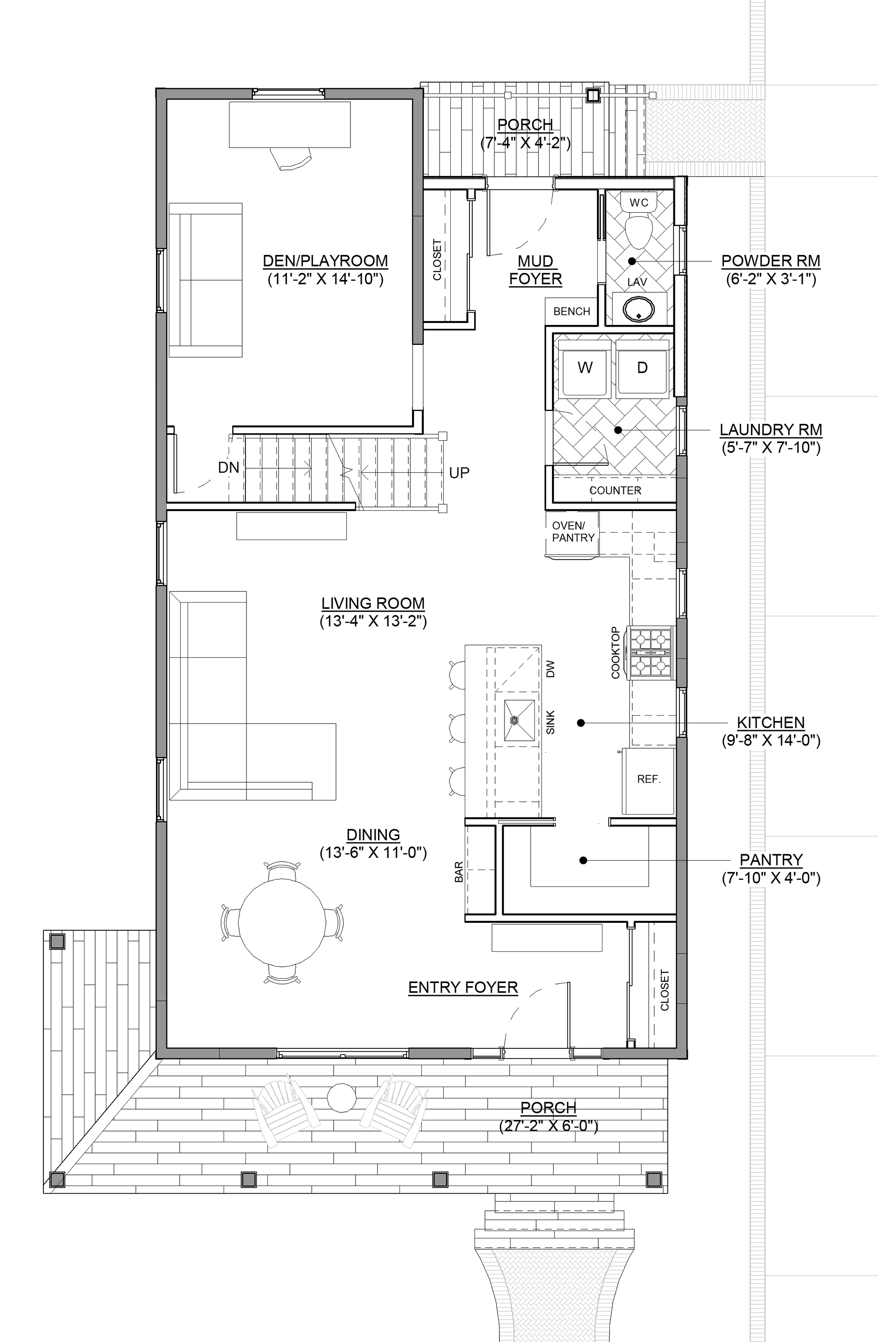
FIRST FLOOR PLAN
SECOND FLOOR PLAN
EXISTING HOME (BEFORE)
A craftsman dormer is featured, front and center on this 2nd story addition and renovation project in Manasquan, NJ. An L-shaped front Porch fits snuggly around the footprint of the existing single story home, while the 2nd floor cantilevers under a projected roof gable to create a much needed 4th Bedroom for a growing family. An addition to the footprint at the rear creates space for a functional Mudroom/Powder room/Laundry area, while the Kitchen and Pantry tuck into the middle of the floor plan. Living and Dining space are maximized with an open concept design and division is provided with a cozy Den at the rear of the house...likely a repository for toys for the foreseeable future.
FRONT VIEW LOOKING SOUTHEAST
FRONT VIEW LOOKING NORTHEAST
FIRST FLOOR PLAN
SECOND FLOOR PLAN
EXISTING HOME (BEFORE)